Temukan solusi kreatif dalam desain rumah pada lahan berkontur. Dengan luas terbatas dan kondisi lapangan yang rumit,
Dalam dunia desain rumah, tantangan sering muncul ketika harus merancang rumah di lahan berkontur dengan luas yang terbatas. Namun, Tim Tukanggambar telah menciptakan solusi kreatif dan fungsional untuk menghadapinya. Mari kita jelajahi desain rumah ini yang memberikan solusi unik bagi lahan berkontur.
Pengaturan Lahan yang Berkontur
Pertama-tama, kita harus menghadapi kondisi lapangan yang tidak rata dan perbedaan ketinggian yang mencolok. Selain itu, terdapat juga kolam ikan eksisting dengan struktur beton yang solid. Namun, dengan riset yang mendalam, Tim Tukanggambar berhasil menemukan solusi yang efektif untuk mengatasi tantangan ini.
Kolam ikan eksisting dengan ukuran 3.5x4 m telah diubah menjadi basement yang berfungsi sebagai carport dan garasi mobil. Selain itu, basement ini juga dilengkapi dengan gudang dan toilet. Dengan memanfaatkan ruang secara efisien, desain ini memberikan solusi praktis dalam memaksimalkan penggunaan lahan yang terbatas.
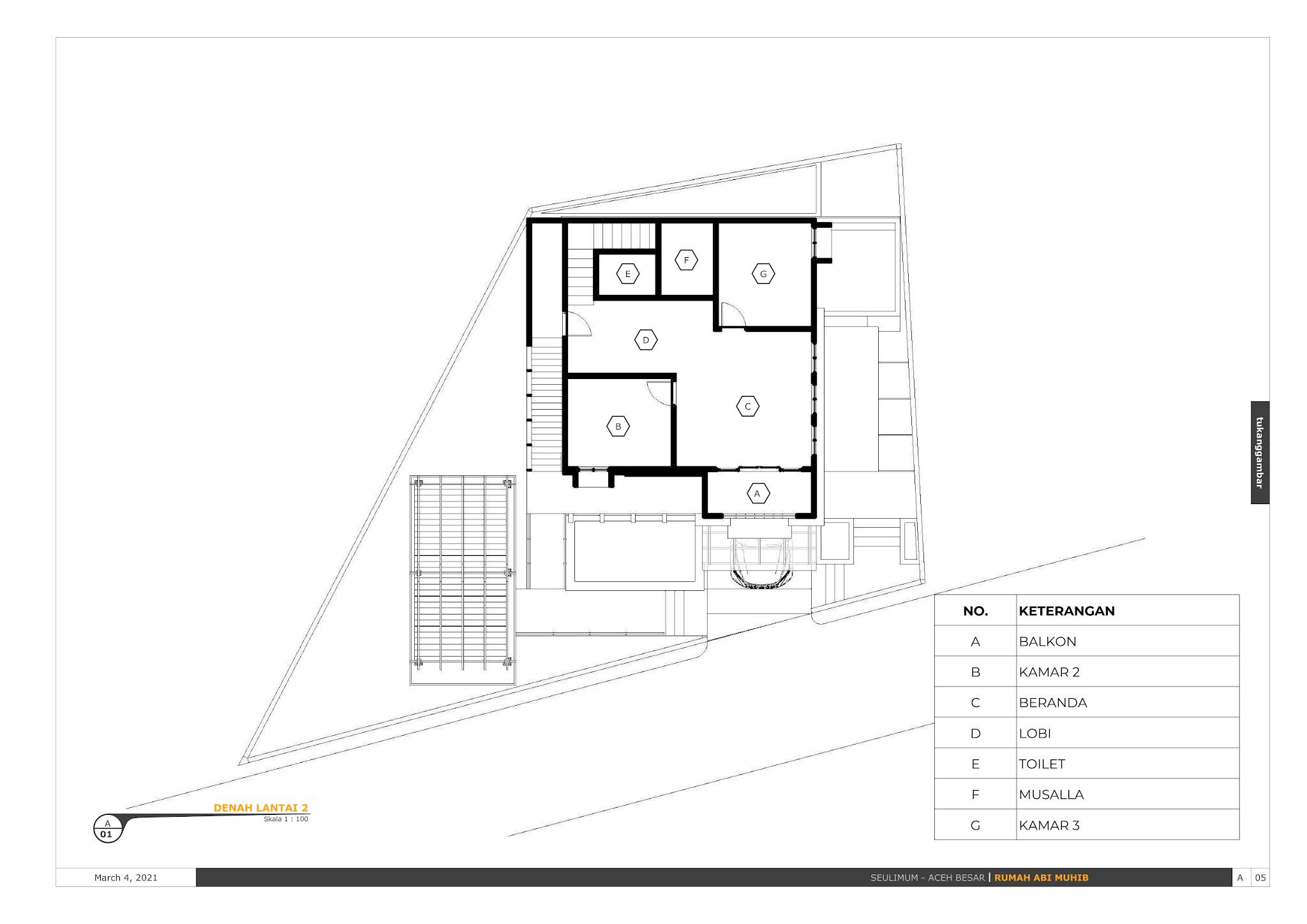
Fungsionalitas pada Setiap Level
Melanjutkan ke level selanjutnya, kita akan menemukan ruang tamu, ruang keluarga, dapur, dan kamar tidur utama dengan toilet di dalamnya. Pada level kedua, terdapat kamar tidur anak dan musalla yang dapat diakses melalui bagian luar. Desain ini memastikan bahwa setiap level rumah memiliki fungsionalitas yang sesuai dengan kebutuhan sehari-hari.
Di area halaman rumah, terdapat kolam dan gazebo yang berfungsi sebagai elemen dekoratif serta tempat penerimaan tamu. Kolam ini memberikan sentuhan yang menawan, sementara gazebo dengan luas 3x6 m menyediakan ruang tambahan yang nyaman dan menyambut bagi tamu yang datang.
Penutup
Desain rumah pada lahan berkontur memang menantang, tetapi Tim Tukanggambar telah berhasil menghadirkan solusi yang kreatif dan fungsional. Desain rumah ini memaksimalkan penggunaan ruang pada lahan yang terbatas, memberikan ruang yang sesuai dengan kebutuhan sehari-hari, serta menciptakan elemen dekoratif yang memikat. Jika Anda mencari solusi yang unik untuk rumah Anda, Tim Tukanggambar adalah pilihan yang tepat untuk membantu mewujudkannya.
Tim Desain:
Saiful Hadi, MT
Rizki Ambiya, S.Ars
Lokasi:
Aceh Besar
Tahun: 2021
- [message]
- Jasa Desain Rumah
- Tukang Gambar merupakan layanan usaha yang bergerak pada sektor perencanaan Konstruksi Bangunan Gedung, Interior, dan Eksterior. Kemajuan teknologi dewasa ini telah memasuki dunia teknologi yang serba cepat dan praktis. Tukang Gambar menawarkan jasa desain rumah secara online agar bisa berinteraksi dimana pun dan kapan pun saja.





