Desain tempat wudhu dengan toilet: Kenyamanan dan kesucian terpadu dalam ibadah. Temukan contoh desain terbaik di tukanggambar.com.
Tempat wudhu merupakan salah satu elemen penting dalam bangunan ibadah seperti masjid atau musalla. Desain yang baik dan terencana dengan baik dapat memberikan pengalaman yang nyaman bagi para jamaah yang ingin menjalankan ibadah wudhu. Selain itu, kenyamanan juga harus diiringi dengan kebersihan dan kesucian tempat wudhu. Dalam artikel ini, kami akan membahas contoh desain tempat wudhu yang dilengkapi dengan toilet, menggabungkan fungsi-fungsi penting dalam satu tempat.
Pentingnya Desain Tempat Wudhu yang Baik
Sebelum membahas lebih jauh tentang desain tempat wudhu yang dilengkapi dengan toilet, penting untuk memahami mengapa desain tempat wudhu menjadi begitu krusial dalam bangunan ibadah. Tempat wudhu adalah tempat di mana umat Muslim membersihkan diri sebelum melaksanakan ibadah shalat. Oleh karena itu, desain tempat wudhu harus memenuhi beberapa kriteria agar jamaah merasa nyaman dan fokus dalam menjalankan ibadahnya.
Pertama, kebersihan tempat wudhu harus dijaga dengan baik. Fasilitas seperti keran air, wastafel, dan lantai harus selalu bersih dan bebas dari kotoran. Kebersihan yang terjaga akan memberikan kesan yang baik dan meningkatkan kenyamanan bagi pengguna tempat wudhu.
Kedua, ketersediaan air yang cukup dan lancar sangat penting. Ketersediaan air yang baik akan memastikan jamaah dapat menjalankan wudhu dengan sempurna dan tanpa hambatan. Hal ini juga akan meminimalisir antrian yang panjang di tempat wudhu, memungkinkan jamaah untuk menunaikan ibadah dengan tepat waktu.
Desain Tempat Wudhu yang Dilengkapi dengan Toilet
Selain memperhatikan kebersihan dan ketersediaan air, beberapa tempat ibadah juga memilih untuk menyediakan toilet di area tempat wudhu. Hal ini bertujuan untuk memberikan kenyamanan ekstra bagi jamaah yang mengunjungi bangunan ibadah tersebut. Berikut adalah contoh desain tempat wudhu yang dilengkapi dengan toilet:
- Pisahkan area wudhu dan toilet: Untuk menjaga kesucian tempat wudhu, penting untuk memisahkan area wudhu dan toilet secara fisik. Pemisahan ini dapat dilakukan dengan menggunakan partisi atau dinding yang memisahkan kedua area tersebut. Hal ini akan memberikan rasa nyaman dan menjaga kebersihan serta kesucian tempat wudhu.
- Pastikan kebersihan toilet: Toilet yang terletak di dekat tempat wudhu harus tetap bersih dan terawat dengan baik. Menjaga kebersihan toilet adalah kunci untuk memberikan pengalaman yang nyaman bagi jamaah yang menggunakannya. Sediakan fasilitas seperti sabun cuci tangan, tisu, dan tempat sampah yang sesuai.
- Ruang yang cukup: Pastikan desain tempat wudhu yang dilengkapi dengan toilet memiliki ruang yang cukup untuk menampung jamaah yang ingin menggunakan fasilitas tersebut. Ruang yang luas akan meminimalisir antrian dan memberikan kenyamanan tambahan bagi para pengguna.
- Sirkulasi udara dan pencahayaan yang baik: Desain tempat wudhu yang baik harus memperhatikan sirkulasi udara dan pencahayaan yang memadai. Sirkulasi udara yang baik akan menjaga tempat wudhu tetap segar dan bebas dari bau yang tidak sedap. Pencahayaan yang cukup akan memastikan penggunaan tempat wudhu dan toilet yang aman serta nyaman.
- Fasilitas pendukung: Selain toilet, tempat wudhu yang baik juga sebaiknya dilengkapi dengan fasilitas pendukung lainnya, seperti tempat untuk meletakkan sepatu, tempat gantung pakaian, dan tempat untuk meletakkan barang bawaan jamaah. Hal-hal ini akan memberikan kenyamanan dan kemudahan dalam menjalankan ibadah wudhu.
Kesimpulan
Tempat wudhu merupakan elemen penting dalam bangunan ibadah, dan desain tempat wudhu yang baik sangat penting untuk memberikan kenyamanan dan pengalaman yang positif bagi jamaah. Dalam beberapa kasus, desain tempat wudhu juga dapat dilengkapi dengan toilet untuk memberikan kenyamanan tambahan. Namun, dalam melaksanakan desain ini, kebersihan dan kesucian tempat wudhu harus tetap dijaga dengan baik. Dengan memperhatikan semua faktor ini, diharapkan tempat wudhu yang dilengkapi dengan toilet dapat memberikan pengalaman yang nyaman dan menjaga kebersihan serta kesucian tempat ibadah.
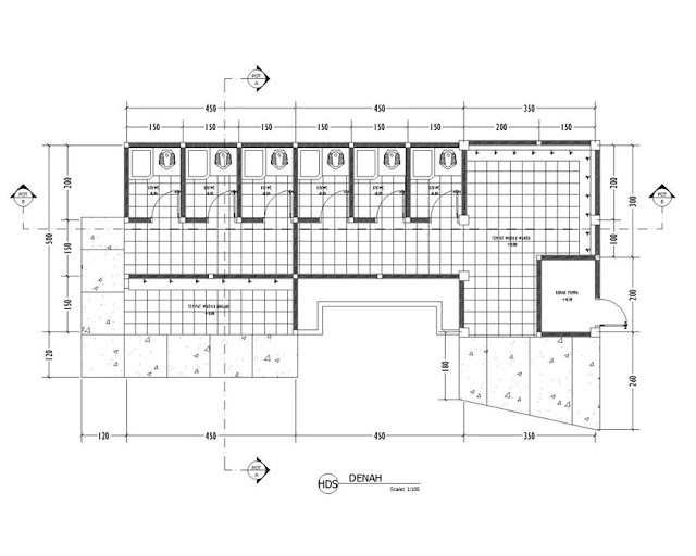
Berikut ini contoh desain tempat wudhu yang dilengkapi dengan toilet:
![]() |
| Bak Air Tempat Wudhu |
![]() |
| Tampak Depan |
![]() |
| Isometrik |
![]() |
| Tampak Samping |
![]() |
| Denah |
- [message]
- Jasa Desain Rumah
- Tukang Gambar merupakan layanan usaha yang bergerak pada sektor perencanaan Konstruksi Bangunan Gedung, Interior, dan Eksterior. Tukang Gambar menawarkan jasa desain rumah secara online agar bisa berinteraksi dimana pun dan kapan pun saja.




